
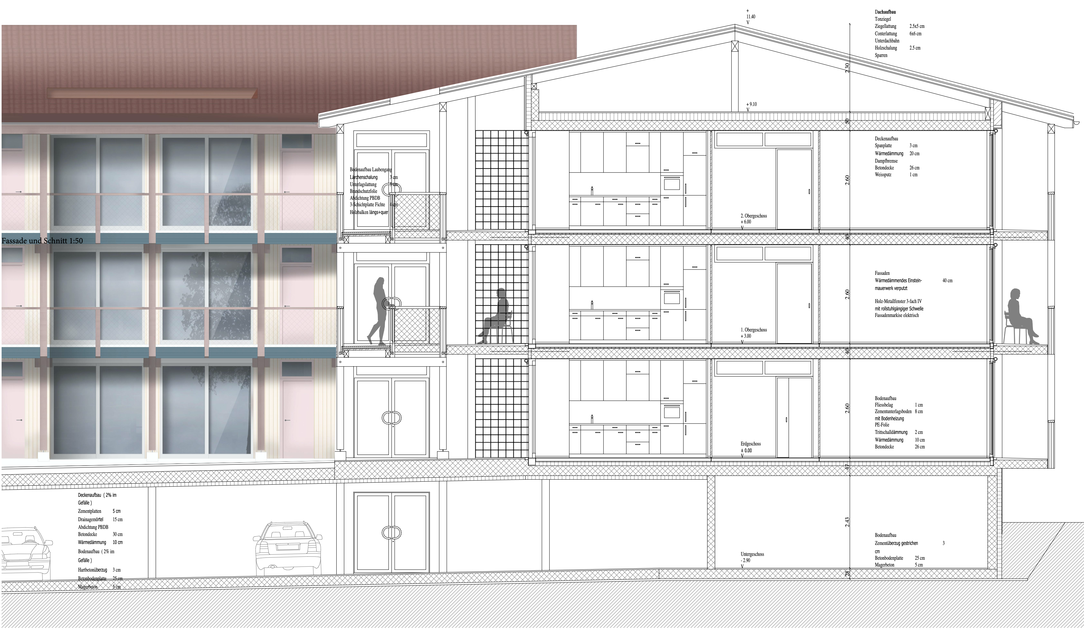
Alterswohnungen Luppmenpark, Hittnau
Auftrag: 4. Preis Wettbewerb
Bauherrschaft: Gemeinde Hittnau
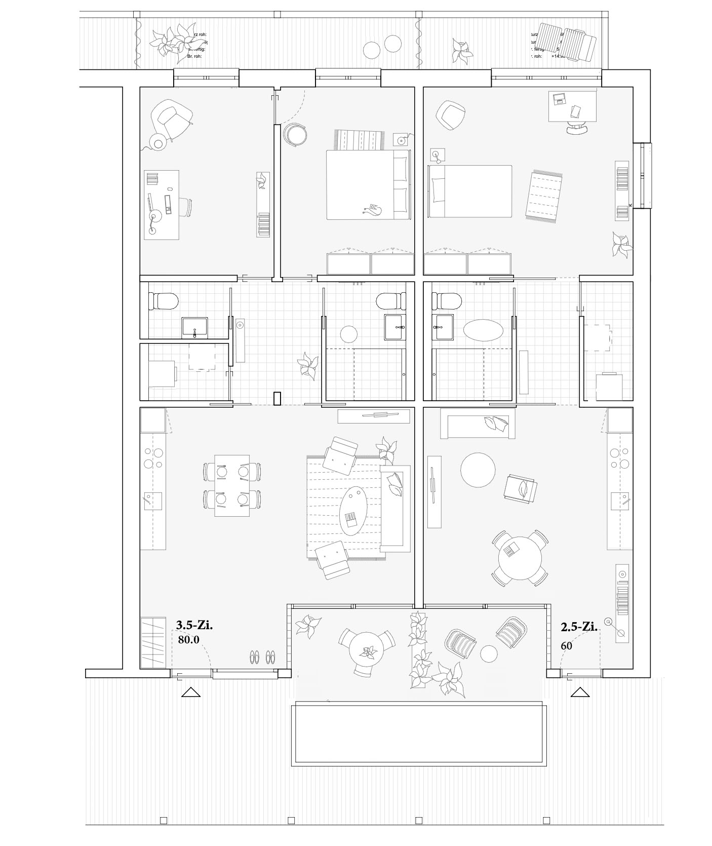
Aufgabe: 37 Alterswohnen in geschützter Parkanlage mit Einbezug der vorhandenen Bauten
Bearbeitungszeit: 2021
Mitarbeit: Alexia Alcaraz, Kathrin Simmen









