Mehrfamilienhaus am Hang, Uitikon Waldegg

Auftrag: Direktauftrag

Bauherrschaft: Privat

Aufgabe: Mehrfamilienhaus mit 4 Wohnungen, 2 Studios

Leistungen: Architekturleistungen 41-53

Bearbeitungszeit: 2021 - 2023

Mitarbeit: Roman Birrer, Raphael Arnold, Kathrin Simmen

Das Mehrfamilienhaus setzt sich aus zwei zueinander versetzten Kuben zusammen, die gemeinsam ein Doppelhaus formen. Die Ost- und Westflanken verlaufen nicht parallel, sondern öffnen sich zum Tal und der grandiosen Aussicht. Die beiden Kuben werden gegenläufig mit einem Giebeldach aus Metall überdeckt. Die Giebelfassaden sind Ost- und Westseitig orientiert.

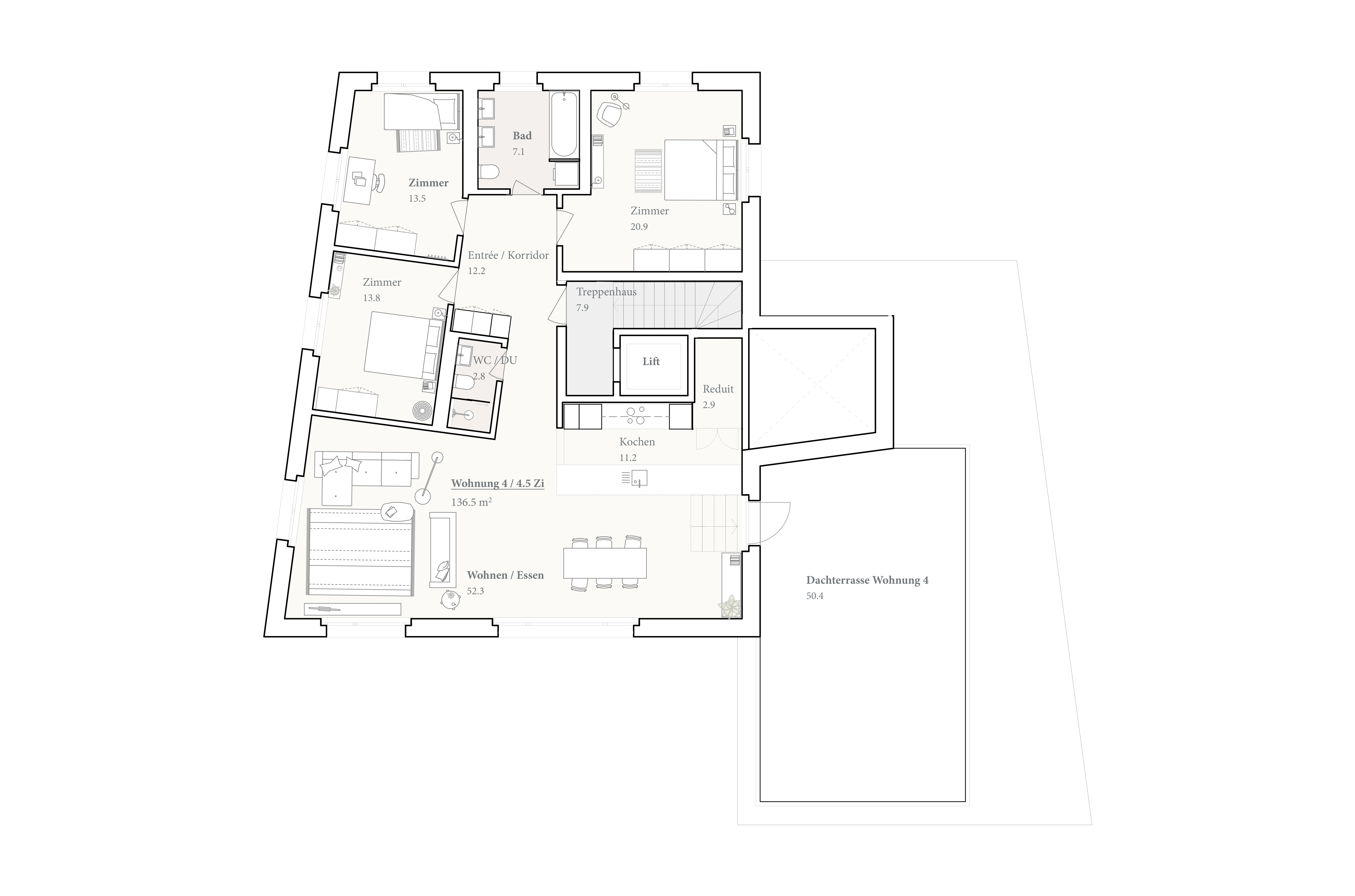
Der Zugang erfolgt im Süden von der Haldenstrasse über die Sammelgarage oder von Norden über die Chliwisstrasse. Durch die geschickte Ausnützung der Hanglage besetzt jede Wohnung im Splitlevel ihr eigenes Niveau. Bis auf die Wohnung im Obergeschoss, die eine grosszügige Terrasse als Aussenraum zur Nutzung hat, verfügen sämtliche Wohnungen über einen Gartenzugang. Der Eintritt in die Wohnung erfolgt über ein Entrée, das die Geometrie der schrägen Aussenwände aufnimmt. Der Grundriss ist klassisch in Tag- und Nachtbereich eingeteilt. Der grosszügige, offene Wohn- , Ess- und Kochbereich orientiert sich jeweils zur Aussichtsseite gegen Süden hin.

Die hochwertige Fassade wird von einem hellen Klinkerstein geprägt. Lochfenster verschiedener Formate sind in eine komponierten Anordnung gesetzt. In den Südfassaden formen zwei grössere Ausschnitte Loggiabalkone. Das zentrale Treppenhaus in rohem Sichtbeton verbindet die verschiedenen Ebenen miteinander. Im Kontrast dazu steht der Holzsockel aus Eiche, der sich als wohnliches Element die Wohnungstüren verbindet, die ebenfalls in Eichenholz ausgebildet werden.
Im Kontrast zum Parkettboden in den Zimmern wird im Entrée- und Wohnbereich ein fugenloser Gussboden eingesetzt um die Grosszügigkeit der Wohnungen zu verstärken.