Wohnüberbauung Wilermatten, Turgi

Auftrag: 1. Preis Planerwahlverfahren

Bauherrschaft: Pensionskasse Schaffhausen

Aufgabe: Innen- und Aussensanierung mit Erweiterungen der 3 Häuser mit 36 Wohnungen

Leistungen: Generalplanermandat Phase 31-33, Architekturleistungen 41-53 mit Halter AG

Bearbeitungszeit: 2019 -2022

Energielabel: Minergie Systemerneuerung

Mitarbeit: Raphael Arnold, Jarmo Wieland, Kathrin Simmen

Die Mehrfamilienhäuser Wilermatten in Turgi wurden im Jahr 1984 erstellt. Zwei Häuser liegen nebeneinander in einer Ebene, das dritte Haus staffelt sich im Volumen und Höhe entlang des ansteigenden Terrains Richtung Süden nach oben.

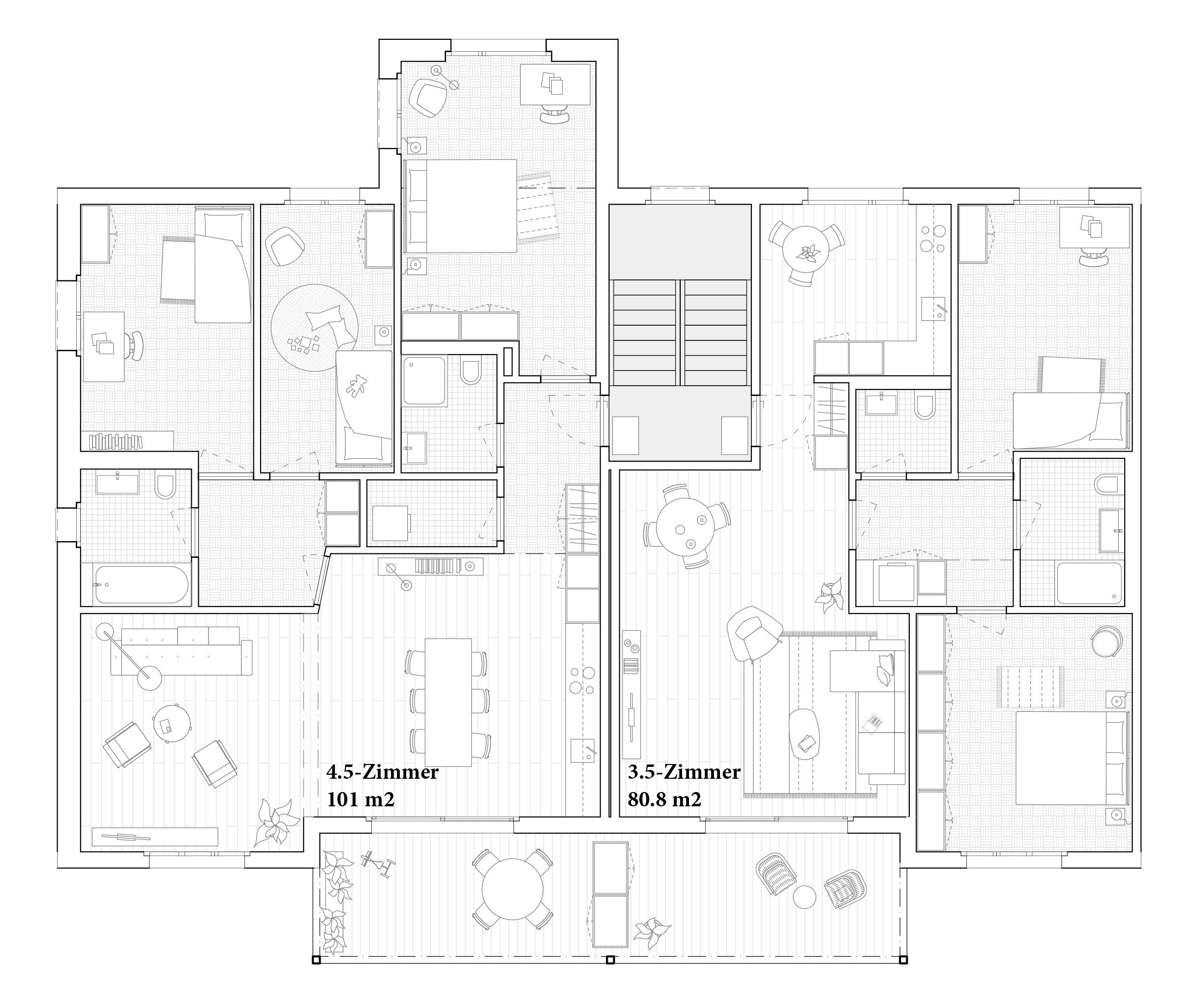
Die zwei baugleichen Häuser werden in der Grundrissfigur um einen kleinen Anbau verändert, damit grosszügigere 4.5-Zimmerwohnungen entstehen. Dank der neuen Typologie des verbundenen Wohn-Essraums vergrössert sich das Raumgefühl in den Wohnungen. Die 3.5- Zimmerwohnung bleibt ein Durchwohntyp.
Die Balkone werden dank neuer Brüstungen leichter und bleiben trotzdem privat. Die Sanierung erfolgt in entmietetem Zustand. Die Fassaden sind mit 10 cm EPS gedämmt und werden instand gesetzt und neu gestrichen.

Das abgetreppte Haus erfährt keine Grundrissänderungen; hier werden lediglich Küche und Nasszellen sowie die Haustechnik erneuert, weil die Sanierung in bewohntem Zustand erfolgt.
Die Auffrischung der Aussenhülle inkl. der Balkonvergrösserung erfolgt analog zu den anderen beiden Häusern.

Die gesamte Siedlung wird nach Minergie Systemerneuerung zertifiziert. Die Energieerzeugung für Heizung und Warmwasser erfolgt durch Fernwärme. Die Erneuerung der Elektroapparate (Küchen und Beleuchtung) ermöglicht die nötige Energieeinsparung von 40%. Frischluft strömt über Nachstromöffnungen in der Fassade nach, die Abluft wird über die Nasszellen abgesogen.