Zentrum Allmendhof, Männedorf

Auftrag: 2. Preis Wettbewerb

Bauherrschaft: Zentrum Allmendhof AG

Aufgabe: 36 Alterswohnungen, 48 Pflegezimmer, Gesundheitszentrum, Hofbeiz

Leistungen: Wettbewerb mit Manoa Landschaftsarchitekten, wild baumanagement

Bearbeitungszeit: 2022 - 2023

Mitarbeit: Vincenzo Pagano, Katharina Schielke, Albnora Adili, Kathrin Simmen

Geschichte

Männedorf, am rechten Zürichseeufer am südlichen Hang des Pfannenstiels gelegen, entwickelte sich aus einer Tradition der Landwirtschaft. Fischer, Bauern und Winzer bewohnten hauptsächlich das Dorf, dessen Kern bis heute am Seeufer liegt. Sie bewirtschafteten die Hügel, die vor allem Weinbauern zur besseren Bewirtschaftung in Terrassen verwandelten. Es entstanden bäuerliche Gebäudegruppen, die in ihrer Nutzung hauptsächlich Scheunen, Bauern- oder Gutshäuser waren und eng in Verbindung mit der umliegenden Natur standen. So finden wir heute das Areal des Allmendhofes als Zeuge seiner Geschichte vor. Am Rand der Landwirtschaftszone gelegen verweist schon der Namensteil «Allmend» auf die ursprünglich gemeinschaftlich-landwirtschaftliche Nutzung der Parzelle als bäuerliches Weingut. Historische Bilder zeigen auf, dass die Gebäude in ihrer Setzung immer wieder ergänzt und transformiert wurden.
Das heutige «Allmendhöfli» ist anstelle eines Bauernhaues mit Scheunenteil gebaut. Der vordere Allmendhof, das Gutshaus, wurde bereits ca. 1960 um eine Achse ergänzt und nach dem Brand in gleicher Aussenform wieder errichtet. Scheunen oder Ställe – ganz in Tradition entlang der Höhenlinien ausgerichtet – wurden nach Notwendigkeit im hinteren Bereich, dort wo das heutige Pflegeheim steht, errichtet. Der bereits bestehende Dorfplatz und die unterschiedlichen Grünflächen sind gewachsene, identitätsstiftende Ortsqualitäten. Dieses vorgefundene Grundgefüge der über die Zeit gewachsenen Komposition, Typologie und Ausrichtung der Gebäude und Aussenräume möchten wir pflegen und sehen es als Grundstein einer selbstverständlichen Weiterentwicklung des Ortes mit dörflichem Charakter.

Motivation

Grundlegend für den Entwurf ist die Absicht, einen Ort zu schaffen, an dem sich Menschen in natürlichen Nachbarschaften treffen und austauschen können: Angefangen bei der ortsbaulichen Setzung, die den Dorfcharakter stärkt, über die einzelnen Häuser, die den menschlichen Massstab erhalten hin zu den einzelnen Zimmern, die eine wohnliche Atmosphäre in Wärme und Geborgenheit bieten, ist das Zentrum Allmendhof ein integrativer und gemeinschaftlicher Ort. Die Stimmung ist heiter und gesund, offen und gleichberechtigt. Der Projektvorschlag erzeugt eine Dichte von Identitäten, die vom Dorfplatz bis in die Wohngruppen zu spüren ist: kommunikativ, einladend, gemeinschaftlich – eben „insieme“.

Ortsbauliche Einbettung

Die Körnung und Morphologie der vorgefundenen Strukturen werden selbstverständlich fortgeführt. Ausblicke auf den Zürichsee und in die umliegenden Grünräume sowie Orientierung und Besonnung sind massgebend für die Setzung und Ausformulierung der Volumina. Der transformierte (Wieder-) Erkennungswert erzeugt eine konstante Identifikation mit dem Ort, stärkt das Zugehörigkeitsgefühl und die Eingliederung ins angrenzende Quartier. So schaffen die neuen Baukörper den Übergang von Wohnquartier zu Landschaftszone und kreieren eine Dichte, die dem Ort entspricht und der Nutzung zu Gute kommt.

Architektur

Der architektonische Ausdruck der Gebäude ist gestalterisch in der Wahl der Proportionen und Materialitäten, Dachformen und Fensterformate in einer ländlichen Tradition und Sprache verortet. Der sorgfältig abgestimmte Einsatz von Holz und Putz in unterschiedlicher Rauheit und Grösse sowie die gewählte Farbigkeit formulieren Gebäude mit eigenständiger Identität. Gleichzeitig wachsen Sie als in ihrer Gesamtheit als Akteure zum Ensemble des Allmendhofs zusammen.

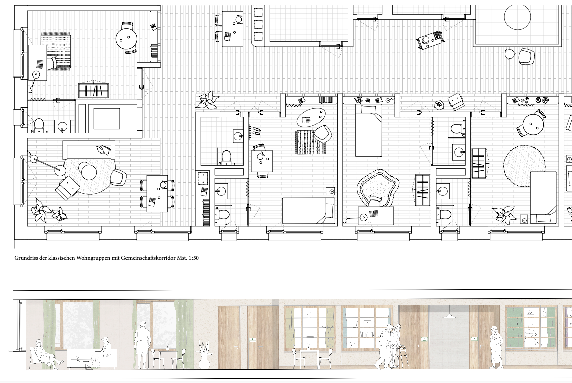
Wohnen im Allmendhof

Im Flachbau des Pflegezentrums ist eine Rampe Herzstück des Begegnungsraums. Die Rampe verbindet schwellenlos und integrativ den Dorfplatz mit dem Hofgarten, sorgt für eine freie Zirkulation über alle drei Geschosse mit vielseitigen Sichtbezügen und Kontaktmöglichkeiten.
Der nachbarschaftliche Austausch ist in die einzelnen Wohngruppen der Schüüren fortgeführt. Die Zimmer haben hinter ihrem Fenster zum Korridor ein eingebautes Regalmöbel, das nicht nur die Aufbewahrung von Lieblingsstücken erleichtert, sondern gleichzeitig wie eine kleine Visitenkarte der Bewohnenden funktioniert und so für Gesprächsthemen und Interesse sorgt, die der erste Schritt hin zur gemeinschaftlichen Kommunikation sind.
Im Stöckli und im Gutshaus reihen sich jeweils alle geschossgleichen Wohnungseingänge an einem übersichtlichen Korridor auf. Hier vermittelt eine Verglasung mit korridorseitiger Ablagefläche oder Sitzbank neben der Tür zwischen öffentlichem und privatem Raum und lädt zu einem kurzen Schwatz ein.